A two bedroom ground floor apartment well presented throughout, located within the popular Airpoint development in Bedminster.
Located only a short walk to nearby North Street which hosts a variety of independent shops and eateries. Also, within easy access of the city centre via foot, bus or bike.
Benefits include an allocated parking space and private garden. The development also benefits from a communal roof which has running and BBQ space.
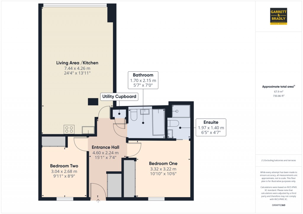
The property also features an entrance hall, open plan living area, two double bedrooms, ensuite and bathroom.
Please note the current owner will be covering management fees for the remainder of 2025, saving cost for the new owner!
Perfect if you’re a first time buyer or investor, also available with NO CHAIN! Viewings are highly recommended to appreciate all this property has to offer.
Council Tax Band: B.
The seller has informed us of the following lease information:
Length of lease: 999 years from 1 January 2006
Ground rent: £250
Management service charge: approx. £2500 per year.
